
/
一覧


| 価格 | 2,859万円 |
|---|
| 所在地 | 高知市介良 | 交通 | バス停 中野団地二区 停歩2分 |
|---|---|---|---|
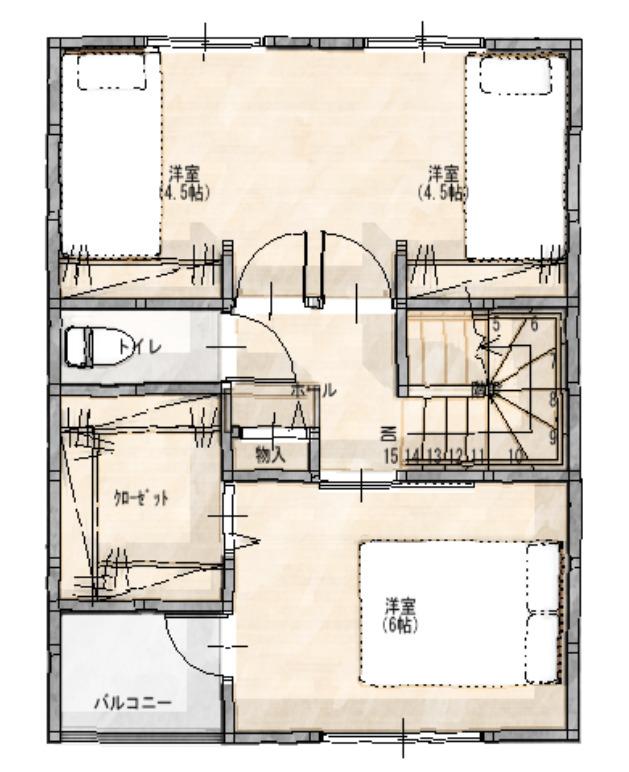
| 土地面積 | 103.76㎡(約31坪) | 間取り | 1F LDK16.1 2F 洋4.5・4.5・6 |
- 所在地
- 高知市介良
- 交通
- バス停 中野団地二区 停歩2分
- 価格
- 2,859万円
- 間取り
- 1F LDK16.1 2F 洋4.5・4.5・6
- 土地面積
- 103.76㎡(約31.38坪)
- 地目
- 宅地
- 用途地域
- 第一種低層住居専用地域
- 都市計画
- 市街化区域
- 建ぺい率
- 60%
- 容積率
- 100%
- 接道状況
- 一方 南 幅5.8m 公道 接面7.0m 舗装有
- 建物構造
- 木造
- 延床面積・専有面積
- 84.45㎡(約25.54坪)
- 建物階数
- 2階
- 築年月
- 2026年03月
- 駐車場台数
- 2台
- 現況
- 建築中
- 引渡/入居時期
- 相談
- 小学校区
- 介良潮見台小学校区
- 中学校区
- 介良中学校区
- 取引態様
- 仲介
通話無料!
お電話でのお問い合わせはこちらから
- 0120-770-880
- 受付時間/9:00~18:00(水曜定休)








高知市介良の新築一戸建てです。
担当: 古味 伸浩