高知市鴨部 中古住宅 2680万円 3SLDK


/
一覧




| 価格 | 2,680万円 |
|---|
| 所在地 | 高知市鴨部 | 交通 | 古新堂バス停まで徒歩2分 |
|---|---|---|---|
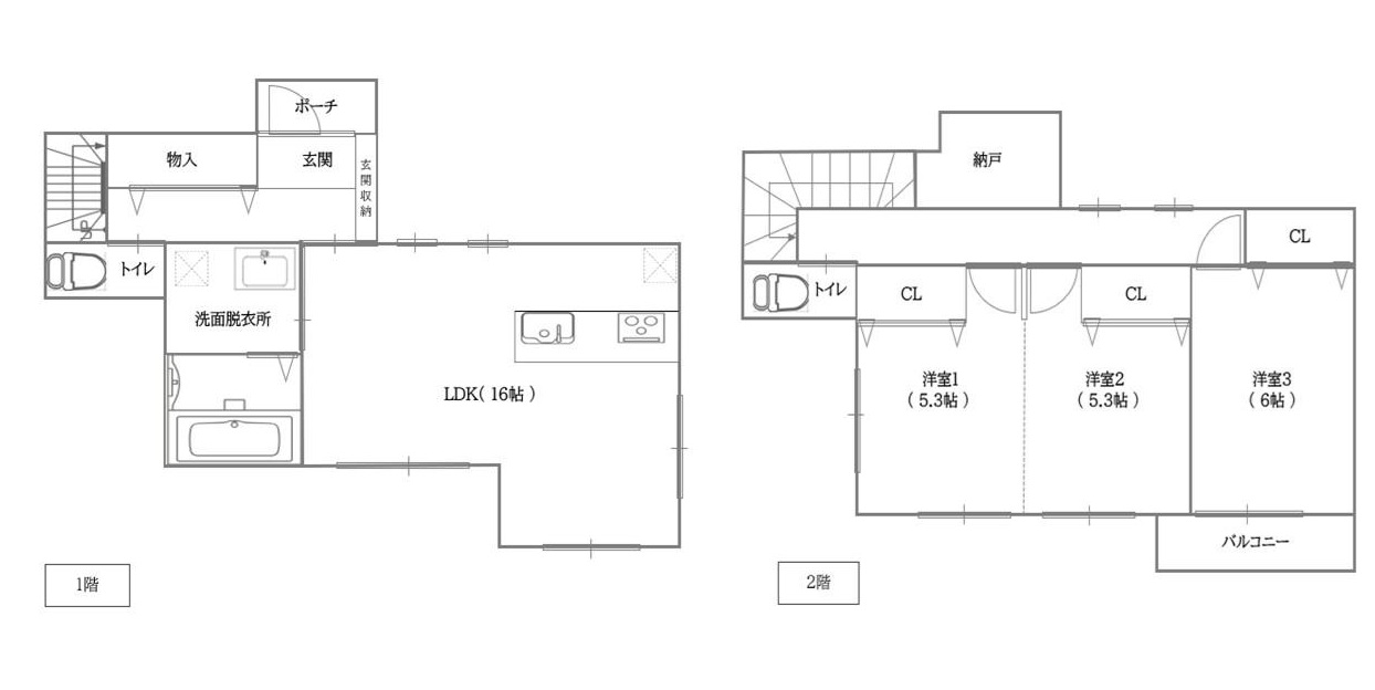
| 土地面積 | 101㎡(約30坪) | 間取り | ・1階16LDK・2階6洋、5.3洋、5.3洋 |
33.54794497128503, 133.50365993615543
正確な場所は表示できない場合がございます。詳しい場所はお問い合わせください。
- 所在地
- 高知市鴨部
- 交通
- 古新堂バス停まで徒歩2分
- 価格
- 2,680万円
- 間取り
- ・1階16LDK・2階6洋、5.3洋、5.3洋
- 土地面積
- 101㎡(約30.55坪)
- 地目
- 宅地
- 用途地域
- 近隣商業地域
- 都市計画
- 市街化区域
- 建ぺい率
- 80%
- 容積率
- 200%
- 建物構造
- 木造
- 延床面積・専有面積
- 89.43㎡(約27.05坪)
- 建物階数
- 2階
- 築年月
- 2021年05月
- 駐車場台数
- 2台
- 現況
- 所有者居住中
- 引渡/入居時期
- 相談
- 小学校区
- 鴨田小学校区
- 中学校区
- 西部中学校区
- 取引態様
- 仲介
通話無料!
お電話でのお問い合わせはこちらから
- 0120-770-880
- 受付時間/9:00~18:00







高知市鴨部の中古住宅です。2021年5月築の築浅物件。
全居室収納付き。
玄関収納や納戸もあり、収納力のある住まいです。
土佐道路から少し入った立地で、
周辺にはお店も多く、
日々のお買い物にも便利な環境です。
担当: 永見 周三