高知市朝倉本町2丁目(中)新築一戸建て 3580万円 3LDK


/
一覧




| 価格 | 3,580万円 |
|---|
| 所在地 | 高知市朝倉本町2丁目 | 交通 | バス停 北城山 停歩5分 |
|---|---|---|---|
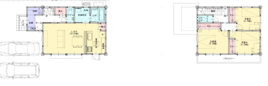
| 土地面積 | 131.65㎡(約39坪) | 間取り | 1F LDK15.67 2F 洋4.73・5.23・6.34 |
33.54732736356744, 133.48766464588311
正確な場所は表示できない場合がございます。詳しい場所はお問い合わせください。
- 所在地
- 高知市朝倉本町2丁目
- 交通
- バス停 北城山 停歩5分
- 価格
- 3,580万円
- 間取り
- 1F LDK15.67 2F 洋4.73・5.23・6.34
- 土地面積
- 131.65㎡(約39.82坪)
- 地目
- 宅地
- 用途地域
- 第一種中高層住居専用地域
- 都市計画
- 市街化区域
- 建ぺい率
- 60%
- 容積率
- 200%
- 接道状況
- 一方 西
- 建物構造
- 木造
- 延床面積・専有面積
- 131.65㎡(約39.82坪)
- 建物階数
- 2階
- 築年月
- 2025年12月
- 駐車場台数
- 2台
- 現況
- 建築中
- 引渡/入居時期
- 相談
- 小学校区
- 朝倉小学校区
- 中学校区
- 朝倉中学校区
- 取引態様
- 仲介
通話無料!
お電話でのお問い合わせはこちらから
- 0120-770-880
- 受付時間/9:00~18:00


高知市朝倉本町2丁目の新築一戸建てです。
太陽光発電システム5.28kw搭載です。
別途 上水道引込工事代金375,500円(税込)必要となります。
建築確認番号第R07-00128号
担当: 永見 周三