高知市鴨部 新築一戸建て 3580万円 4LDK ①号地
| 価格 | 3,580万円 |
|---|
| 所在地 | 高知市鴨部 | 交通 | バス停 鴨田小学校前 停歩7分 |
|---|---|---|---|
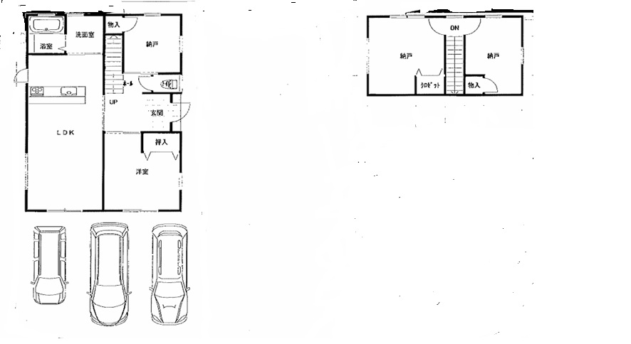
| 土地面積 | 144.10㎡(約43坪) | 間取り | 1F LDK16 洋6.5 4.5 2F 洋6・6 |
動画
33.547705504366974, 133.50984240708752
正確な場所は表示できない場合がございます。詳しい場所はお問い合わせください。
- 所在地
- 高知市鴨部
- 交通
- バス停 鴨田小学校前 停歩7分
- 価格
- 3,580万円
- 間取り
- 1F LDK16 洋6.5 4.5 2F 洋6・6
- 土地面積
- 144.10㎡(約43.59坪)
- 地目
- 宅地
- 用途地域
- 第一種中高層住居専用地域
- 都市計画
- 市街化区域
- 建ぺい率
- 60%
- 容積率
- 200%
- 建物構造
- 木造
- 延床面積・専有面積
- 91.90㎡(約27.79坪)
- 建物階数
- 2階
- 築年月
- 2026年01月
- 駐車場台数
- 3台
- 現況
- 完成済
- 引渡/入居時期
- 相談
- 小学校区
- 鴨田小学校区
- 中学校区
- 西部中学校区
- 取引態様
- 仲介
360°パノラマ
- キッチン

- リビング

- 洗面所

- 浴室

- リビング以外の居室

- 玄関

- その他

通話無料!
お電話でのお問い合わせはこちらから
- 0120-770-880
- 受付時間/9:00~18:00(水曜定休)
































高知市鴨部の新築一戸建てです。
区画の整った分譲地内に建つお家です。
平屋のような落ち着いた外観が特徴です。
■ゆとりある間取り
間取りは4LDK。
ご家族で暮らすのに十分な広さを確保しています。
■駐車・日当たり
駐車スペースは3台可能。
南向きで日当たりにも配慮された住まいです。
内覧可能です。
お気軽にお問い合わせください。
担当: 古味 伸浩