高知市福井東町 土地 1380万円 約40坪 (北)



/
一覧






| 価格 | 1,380万円 |
|---|
| 所在地 | 高知市福井東町 | 交通 | 福井バス停まで徒歩2分 |
|---|---|---|---|
| 土地面積 | 132.59㎡(約40坪) | ||
33.564235765115356, 133.51358475058316
正確な場所は表示できない場合がございます。詳しい場所はお問い合わせください。
- 所在地
- 高知市福井東町
- 交通
- 福井バス停まで徒歩2分
- 価格
- 1,380万円
- 土地面積
- 132.59㎡(約40.1坪)
- 地目
- 雑種地
- 用途地域
- 第一種中高層住居専用地域
- 都市計画
- 市街化区域
- 建ぺい率
- 60%
- 容積率
- 200%
- 現況
- 更地
- 引渡/入居時期
- 相談
- 取引態様
- 仲介
通話無料!
お電話でのお問い合わせはこちらから
- 0120-770-880
- 受付時間/9:00~18:00






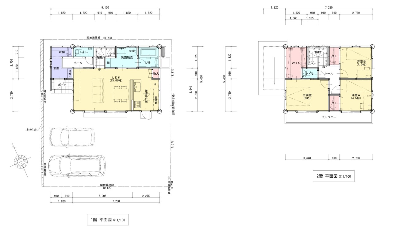
高知市福井東町の土地です。建築プランあります。
建築プラン 84.45㎡(約25.54坪)
2,180万円(税込)
プラン変更できます
土地+建築プラン 総額3,560万円
・別途費用
上水道引込工事代金・新設分担金439,500 円(税込)
担当: 永見 周三