【ご成約】高知市鴨部上町 中古住宅 2200万円 6LDK

/
一覧


| 価格 | 2,200万円 |
|---|
| 所在地 | 高知市鴨部上町 | 交通 | 鴨部バス停まで徒歩4分 |
|---|---|---|---|
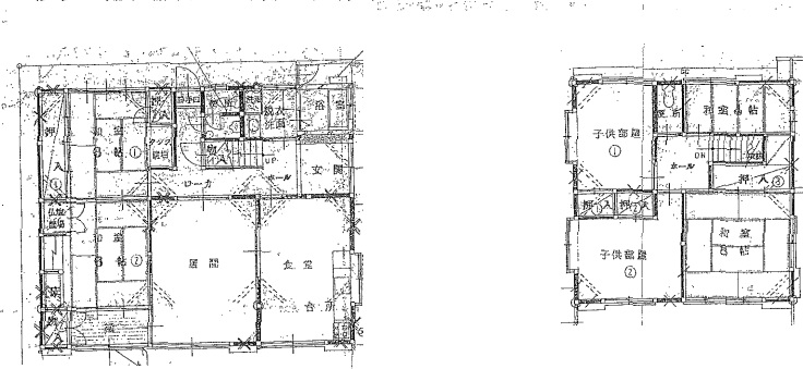
| 土地面積 | 205.77㎡(約62坪) | 間取り | ・1階21LDK、6和、6和・2階6洋、6.5洋、8和、4和 |
- 所在地
- 高知市鴨部上町
- 交通
- 鴨部バス停まで徒歩4分
- 価格
- 2,200万円
- 間取り
- ・1階21LDK、6和、6和・2階6洋、6.5洋、8和、4和
- 土地面積
- 205.77㎡(約62.24坪)
- 地目
- 宅地
- 用途地域
- 第一種中高層住居専用地域
- 都市計画
- 市街化区域
- 建ぺい率
- 60%
- 容積率
- 200%
- 建物構造
- 木造
- 延床面積・専有面積
- 149.56㎡(約45.24坪)
- 建物階数
- 2階
- 築年月
- 1989年07月
- 現況
- 空家
- 引渡/入居時期
- 相談
- 小学校区
- 鴨田小学校区
- 中学校区
- 西部中学校区
- 取引態様
- 仲介
通話無料!
お電話でのお問い合わせはこちらから
- 0120-770-880
- 受付時間/9:00~18:00(水曜定休)






高知市鴨部上町の中古住宅です。【6LDK】純日本家屋の住まい
落ち着いた雰囲気の純日本家屋。
建物はきれいに使用されています。
■部屋数豊富な6LDK
部屋数が多く、
ご家族の多い方はもちろん、
趣味部屋や収納部屋など多用途に活用できます。
■駐車スペース
現在は駐車1台ですが、
庭・門・塀を撤去することで最大3台駐車も検討可能です。
■生活便利な立地
日々の買い物にも便利な環境。
スーパー「毎日屋 あさくらセンター店」まで約190m。
徒歩で利用しやすい距離です。
現在空家のため、
内覧の日程も調整しやすい状況です。
お気軽にお問い合わせください。
担当: 永見 周三