吾川郡いの町天王南7丁目 中古住宅 1680万円 8SLDK




















/
一覧








































| 価格 | 1,680万円 |
|---|
| 所在地 | 吾川郡いの町天王南7丁目 | 交通 | バス停 天王ニュータウン南 徒歩3分 |
|---|---|---|---|
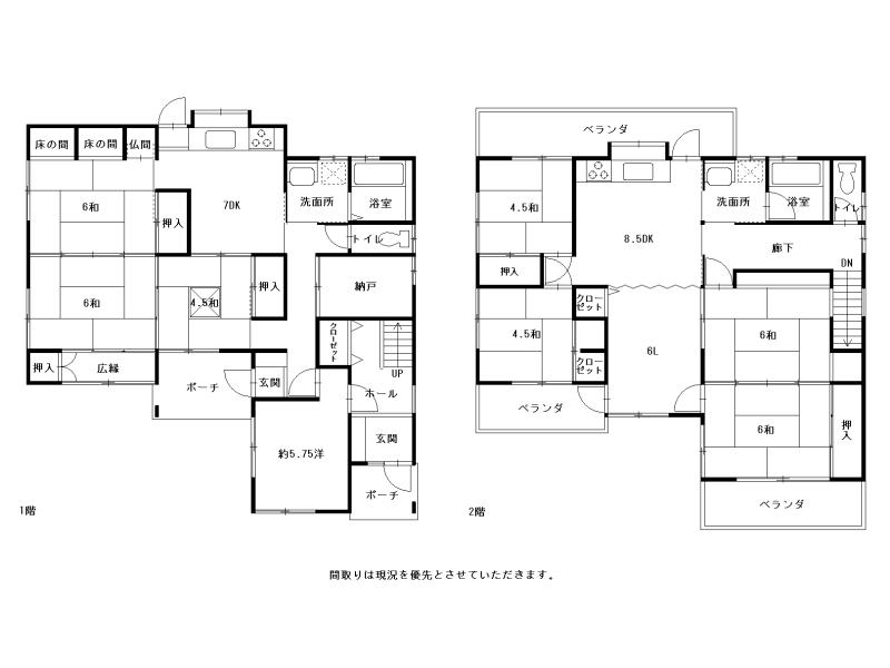
| 土地面積 | 172.72㎡(約52坪) | 間取り | 1F 7DK・6和・6和・4.5和・5.75洋・納戸/2F 14.5LDK・6和・6和・4.5洋・4.5洋 |
33.527459504718436, 133.4516699250246
正確な場所は表示できない場合がございます。詳しい場所はお問い合わせください。
- 所在地
- 吾川郡いの町天王南7丁目
- 交通
- バス停 天王ニュータウン南 徒歩3分
- 価格
- 1,680万円
- 間取り
- 1F 7DK・6和・6和・4.5和・5.75洋・納戸/2F 14.5LDK・6和・6和・4.5洋・4.5洋
- 土地面積
- 172.72㎡(約52.24坪)
- 地目
- 宅地
- 用途地域
- 第一種低層住居専用地域
- 都市計画
- 市街化区域
- 建ぺい率
- 60%
- 容積率
- 100%
- 建物構造
- 木造
- 延床面積・専有面積
- 172.22㎡(約52.09坪)
- 建物階数
- 2階
- 築年月
- 1993年04月
- 駐車場台数
- 1台
- 現況
- 空家
- 引渡/入居時期
- 相談
- 小学校区
- 伊野南小学校区
- 中学校区
- 伊野南中学校区
- 取引態様
- 仲介
通話無料!
お電話でのお問い合わせはこちらから
- 0120-770-880
- 受付時間/9:00~18:00







吾川郡いの町天王南7丁目の中古住宅です。部屋数も多く、収納も充実した8SLDKのお家です。
キッチン・水回りや玄関も1・2階それぞれにあるため、2世帯住宅としても最適です。
周辺にはスーパーやコンビニもあり、生活に便利な環境です。
担当: 永見 周三