【葉山の自社物件】ロイエ中久万南号地 高知市中久万 土地 2750万円 約50坪








/
一覧
















| 価格 | 2,750万円 |
|---|
| 所在地 | 高知市中久万 | 交通 | 中久万バス停まで徒歩4分 |
|---|---|---|---|
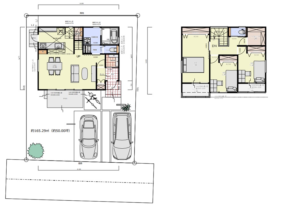
| 土地面積 | 165.29㎡(約50坪) | ||
33.57098367082411, 133.52562504149356
正確な場所は表示できない場合がございます。詳しい場所はお問い合わせください。
- 所在地
- 高知市中久万
- 交通
- 中久万バス停まで徒歩4分
- 価格
- 2,750万円
- 土地面積
- 165.29㎡(約50坪)
- 地目
- 宅地
- 用途地域
- 第一種低層住居専用地域
- 都市計画
- 市街化区域
- 建ぺい率
- 60%
- 容積率
- 100%
- 現況
- 更地
- 引渡/入居時期
- 相談
- 小学校区
- 初月小学校区
- 中学校区
- 城北中学校区
- 取引態様
- 売主
通話無料!
お電話でのお問い合わせはこちらから
- 0120-770-880
- 受付時間/9:00~18:00(水曜定休)






【ロイエ中久万 南号地】約50坪・整形地
高知市中久万に位置する分譲地。
全2区画のうち、南区画のご紹介です。
南区画:約50坪 価格2,750万円(土地価格)
北区画:約47坪 価格2,350万円(土地価格)
いずれも形の整った、ゆとりある敷地です。
物件までの道路も広く、
日々の車の出入りもしやすい立地です。
■生活便利な住環境
周辺施設も充実しています。
・サニーマート 中万々店まで約850m
・ローソン 高知中久万店まで約450m
・ツルハドラッグ 万々店まで約950m
日々の買い物にも便利な環境です。
■建築について
本物件は建築条件付き土地です。
建物は当社・葉山不動産とのご契約となりますが、
ご希望やご予算を丁寧にお伺いしながら、
無理のない住まいづくりをご提案いたします。
建物プランは変更可能です。
ご家族構成やライフスタイルに合わせたご提案が可能です。
当社の住まいづくりは、
「葉山の家 シン標準仕様」をベースに、
性能・仕様・サポートのバランスを大切にしています。
詳しい仕様は、下記バナーよりご確認いただけます。
また、施工事例も掲載しておりますので、
住まいのイメージづくりにぜひご活用ください。
施工事例については、下記バナーよりご確認いただけます。
土地+建物をあわせた資金計画のご相談も可能です。
お気軽にお問い合わせください。
担当: 永見 周三