【ご成約】高知市土地伊勢崎町、1450万円、約33坪、C号地

/
一覧


| 価格 | 1,450万円 |
|---|
| 所在地 | - | 交通 | 吉田町バス停まで徒歩3分 |
|---|---|---|---|
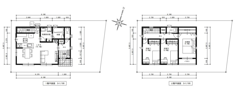
| 土地面積 | 109.84㎡(約33坪) | ||
- 交通
- 吉田町バス停まで徒歩3分
- 価格
- 1,450万円
- 土地面積
- 109.84㎡(約33.22坪)
- 地目
- 宅地
- 用途地域
- 第一種中高層住居専用地域
- 都市計画
- 市街化区域
- 建ぺい率
- 60%
- 容積率
- 200%
- 接道状況
- 東側約8m幅公道に接道
- 現況
- 更地
- 引渡/入居時期
- 相談
- 取引態様
- 仲介
通話無料!
お電話でのお問い合わせはこちらから
- 0120-770-880
- 受付時間/9:00~18:00(水曜定休)





【高知市土地伊勢崎町】
■近隣施設充実しており、利便性の良い土地
■他区画あり、ご要望に応じてお選びいただけます。
・ダイレックス吉田店約165m・コープ吉田店約360m・一ツ橋小学校約50m
・建築条件付き土地